$1,500,000
3, 126 Benchlands Terrace
Canmore, AB, T1W 1G2
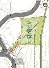
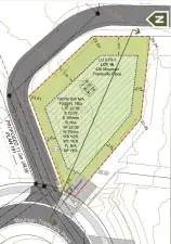
Single Family Home Zoned Lot With Spectacular Views! A quiet lot tucked into a desirable cul de sac in Canmore — with panoramic mountain views spanning from the Three Sisters all the way to Cascade Mountain in Banff. Just footsteps to numerous hiking and biking trails, moments away from an array of the finest shops, restaurants and amenities. Whether you’re wanting to build now or just looking ahead…this space is a canvas for your dream home. No building commitment allows you to take your time while you work through the design and get ready to build your legacy in the Rockies. Concept plans available for a 3,100 square foot residence designed by award winning firm Russell &' Russell. Seize the opportunity to create your ideal mountain retreat in this exclusive location, where luxury meets adventure.
Property Details
Price:
$1,500,000
MLS #:
A2255340
Status:
Active
Baths:
0
Type:
Land
Subtype:
Residential Land
Listed Date:
Sep 9, 2025
Lot Size:
5,091 sqft / 0.12 acres (approx)
Schools
Interior
Exterior
Financial
Walter Saccomani REALTOR® (403) 903-5395 Real Broker Hello, I’m Walter Saccomani, and I’m a dedicated real estate professional with over 25 years of experience navigating the dynamic Calgary market. My deep local knowledge and keen eye for detail allow me to bring exceptional value to both buyers and sellers across the city. I handle every transaction with the highest level of professionalism and integrity, qualities I take immense pride in. My unique perspective as a former real estate…
More About walterMortgage Calculator
Map
Community
- Address3, 126 Benchlands Terrace Canmore AB
- CityCanmore
- CountyBighorn No. 8, M.D. of
- Zip CodeT1W 1G2
Subdivisions in Canmore
Similar Listings Nearby
Property Summary
- 3, 126 Benchlands Terrace Canmore AB is a Land for sale in Canmore, AB, T1W 1G2. It is listed for $1,500,000 and features 0 acres. To schedule a showing of MLS#a2255340 at 3, 126 Benchlands Terrace in Canmore, AB, contact your Harry Z Levy | Real Broker agent at 403-903-5395.

3, 126 Benchlands Terrace
Canmore, AB


