$1,574,900
446 Mountain Tranquility Place
Canmore, AB, T1W 3K9
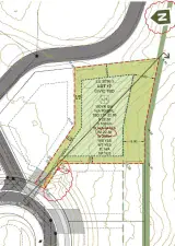
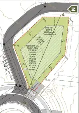
Experience unparalleled breathtaking views from this incredible south-facing homesite with direct views of the south and west. Situated on the best lot in all of Silvertip''s newest luxury development, this lot offers direct views of the iconic Three Sisters in addition to the sprawling mountain range. Overlooking the valley, this property provides you with elevation, views and privacy all year long. Mountain Tranquility at Silvertip offers a prestigious homesite for you to build your custom home and this unique lot offers endless opportunities. Lot 14 backs onto a wildlife corridor, ensuring a tranquil and peaceful environment with stunning views all year long. This large homesite offers 12,630 square feet of space (0.29 acre) and is also one of a few within the development to include a private (not shared) driveway due to its exceptional frontage. Renderings of a home designed for the lot are included for inspiration but a much larger home could be built if desired. Build your dream home today and start enjoying a full time or part time mountain retreat with optimal sunshine and tranquility all year long. Surrounded by Silvertip golf course, wildlife corridors and mountain views from every angle, while being just minutes from Canmore''s endless amenities, this is one of the best locations in all of Canmore. Development is well underway at Canmore''s newest luxury development with roadways in place – meaning you can start building your dream home right away!
Property Details
Price:
$1,574,900
MLS #:
A2236187
Status:
Active
Baths:
0
Type:
Land
Subtype:
Residential Land
Subdivision:
Silvertip
Listed Date:
Jul 4, 2025
Lot Size:
12,632 sqft / 0.29 acres (approx)
Schools
Interior
Exterior
Financial
Walter Saccomani REALTOR® (403) 903-5395 Real Broker Hello, I’m Walter Saccomani, and I’m a dedicated real estate professional with over 25 years of experience navigating the dynamic Calgary market. My deep local knowledge and keen eye for detail allow me to bring exceptional value to both buyers and sellers across the city. I handle every transaction with the highest level of professionalism and integrity, qualities I take immense pride in. My unique perspective as a former real estate…
More About walterMortgage Calculator
Map
Community
- Address446 Mountain Tranquility Place Canmore AB
- SubdivisionSilvertip
- CityCanmore
- CountyBighorn No. 8, M.D. of
- Zip CodeT1W 3K9
Subdivisions in Canmore
Similar Listings Nearby
Property Summary
- Located in the Silvertip subdivision, 446 Mountain Tranquility Place Canmore AB is a Land for sale in Canmore, AB, T1W 3K9. It is listed for $1,574,900 and features 0 acres. To schedule a showing of MLS#a2236187 at 446 Mountain Tranquility Place in Canmore, AB, contact your Harry Z Levy | Real Broker agent at 403-903-5395.

446 Mountain Tranquility Place
Canmore, AB


